tuinkast

202509

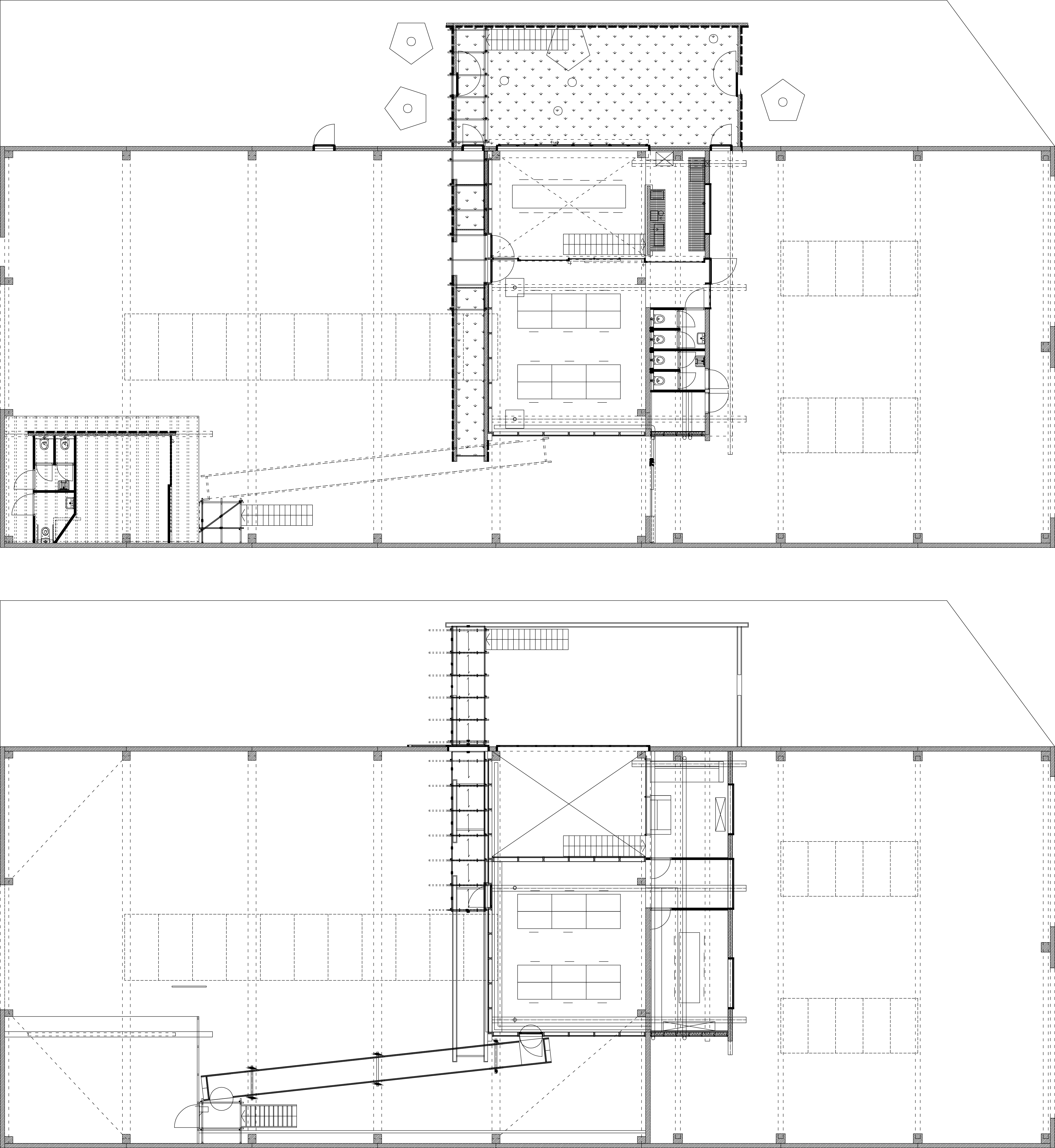
Architectural project for I-Illusions, Geraardsbergen.
Refurbishment of two existing warehouses with new offices and a garden.

Designed together with Sander Rutgers, former LDSRa.

Thank you I-III; Dirk Van Welden & Joachim Wemel!
Garden: Jan Minne.
Structural Engineer: Elise Vandewalle.
Pictures: Michiel De Cleene.

image below: Jan Minne.

below: original concept model.